鄭州杰凱斗提式提升機生產廠家,該設備在物料的輸送過程中不會破壞的外表特,該斗提式提升機采用振動喂料器將物料輸送到皮帶上的小斗內,然后將物料提升到一定高度,整機設計合理,運行平穩,故障率低,價格優惠,承接定制,歡迎新老朋友垂詢!

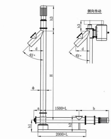
一、斗提式提升機生產廠家主要技術參數:
斗式提升機的常規輸送量:3-4方/h(可根據用戶要求定制)
輸送高度:1.6-3.5米根據用戶要求定制
電源功率:AC380V 0.5kw (可定制220v標準電壓)
減速比:1:17
斗提式提升機生產廠家的自動化程度:可根據用戶需求價值自動供料控制系統
料箱尺寸:750*750*810mm
料箱容積:0.15立方
整機重量:180Kg
傳動方式:皮帶、鏈條可選

二、斗提式提升機生產廠家工作原理:
該斜坡翻斗式上料機針對顆粒物料輸送過程不允許有破損率的要求,設計為多斗式連續供料,送料加料過程不會對物料造成任何的破壞,是顆粒物料輸送及加料的理想設備。該機既可獨立使用也可以與定量包裝秤、定量包裝機配套適用,加上我公司的自動上料控制系統,斗式提升機價格適用于將顆粒狀物料提升到一定高度的場合使用
該斗式提升機價格是通過電磁振動將物料添加到連續的料斗內,料斗通過連續運轉將物料輸送到一定的高度,其特性為在輸送過程中不會對物料進行任何破壞,而且能夠將料斗內物料全部提升干凈,不會有任何殘余
三、售后服務:
斗提式提升機生產廠家一年質保,終身服務!
三、產品綜述:
1、采用了電磁振動喂料器加料,確保物料外觀的完整性;
2、斗式提升機價格采用了蝸輪蝸桿減速機做為動力,整機運行平穩,噪音小;
3、采用了可調控制器控制下料量;
4、可以根據客戶輸送量大小定制輸送斗的尺寸;
5、可以定制不同的高度
6、斗提式提升機生產廠家源頭廠家直銷,價格優惠,售后保障。




客服1